

| タイプ |
Jタイプ |
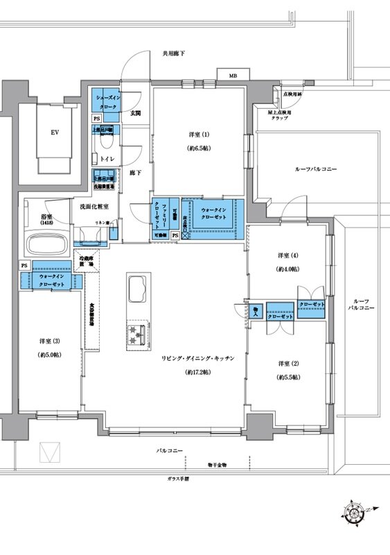
間取り |
4LDK+2WIC+SIC+FC |
|---|---|---|---|
| 専有面積 |
85.03 ㎡ |
バルコニー面積 |
13.02 ㎡ |
| 所在地 |
神奈川県川崎市多摩区登戸字乙耕地282 他(地番) |
||
| 交通 |
JR南武線「中野島」駅 徒歩13分 |
||
| 備考 |
ルーフバルコニー面積:19.58㎡ |
||