
タイプ |
Eタイプ |
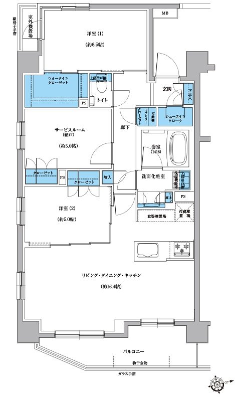
間取り |
2LDK+S+WIC+SIC+FC |
---|---|---|---|
専有面積 |
76.03 ㎡ |
バルコニー面積 |
8.05 ㎡ |
所在地 |
神奈川県川崎市多摩区登戸字乙耕地282 他(地番) |
||
交通 |
JR南武線「中野島」駅 徒歩13分 |
||
備考 |
サービスバルコニー面積:1.35㎡ |