アットホーム 新築マンション

印刷する

このウィンドウを閉じる

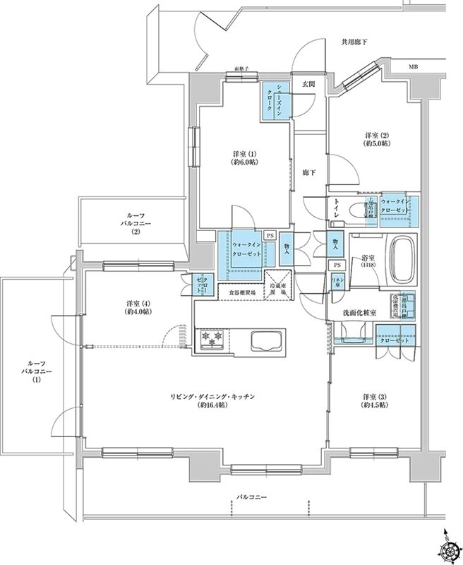
プレシス登戸 Iタイプ

プレシス登戸 間取り Iタイプ
タイプ

Iタイプ

間取り

4LDK+2WIC+SIC

専有面積

78.09 ㎡

バルコニー面積

13.95 ㎡

所在地

神奈川県川崎市多摩区登戸字乙耕地282 他(地番)

交通

JR南武線「中野島」駅 徒歩13分
小田急小田原線「登戸」駅 徒歩18分
小田急小田原線「向ヶ丘遊園」駅 徒歩17分

備考

ルーフバルコニー面積(1):9.64㎡
ルーフバルコニー面積(2):5.32㎡

  • 可変式間仕切り
  • ウォークインクローゼット
  • シューズインクローゼット
  • 3面バルコニー
  • ルーフバルコニー
  • 南向き

印刷する

このウィンドウを閉じる

アットホーム Copyright(c) At Home Co.,Ltd. このサイトに掲載している情報の無断転載を禁止します。著作権はアットホーム(株)またはその情報提供者に帰属します。