
タイプ |
Qタイプ 2工区 サウス棟 |
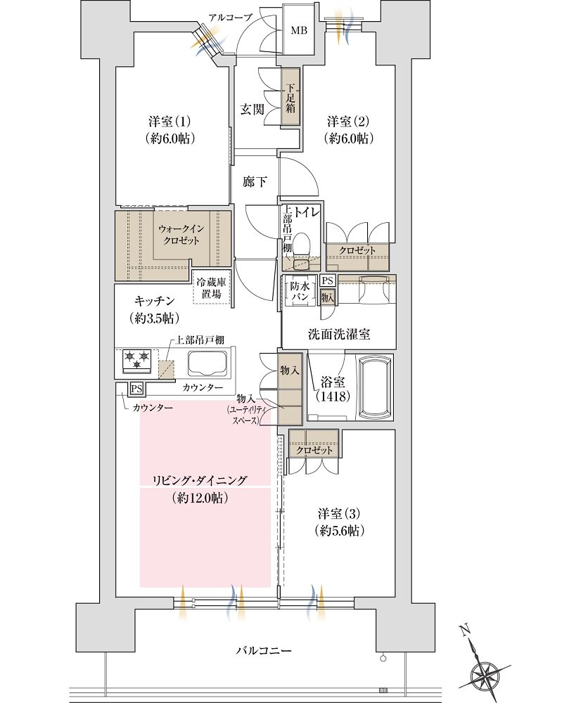
間取り |
3LDK |
---|---|---|---|
専有面積 |
74.35 ㎡ |
バルコニー面積 |
11.87 ㎡ |
所在地 |
大阪府三島郡島本町桜井二丁目1038番(地番) |
||
交通 |
JR東海道本線「島本」駅 徒歩2分(1工区) |
||
備考 |
アルコーブ面積/3.31㎡ |