

| タイプ |
G type |
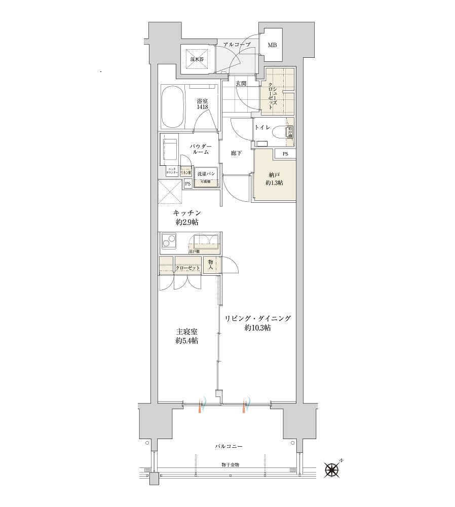
間取り |
1LDK+N |
|---|---|---|---|
| 専有面積 |
50.34 ㎡ |
バルコニー面積 |
10.12 ㎡ |
| 所在地 |
熊本県熊本市中央区九品寺1丁目15-1(地番) |
||
| 交通 |
熊本市電健軍線「九品寺交差点」駅 徒歩6分 |
||
| 備考 |
アルコーブ面積:1.71㎡ |
||