

| タイプ |
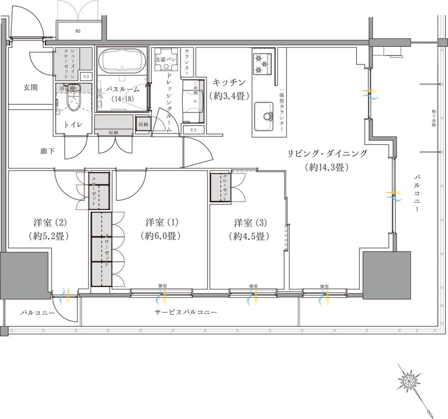
Aタイプ |
間取り |
3LDK+SIC |
|---|---|---|---|
| 専有面積 |
76.42 ㎡ |
バルコニー面積 |
17.38 ㎡ |
| 所在地 |
新潟県新潟市中央区万代2丁目2439番1(地番) |
||
| 交通 |
JR信越本線「新潟」駅 徒歩10分(約800m) |
||
| 備考 |
サービスバルコニー面積:6.06㎡ |
||