
タイプ |
N-80B-LD拡大 type |
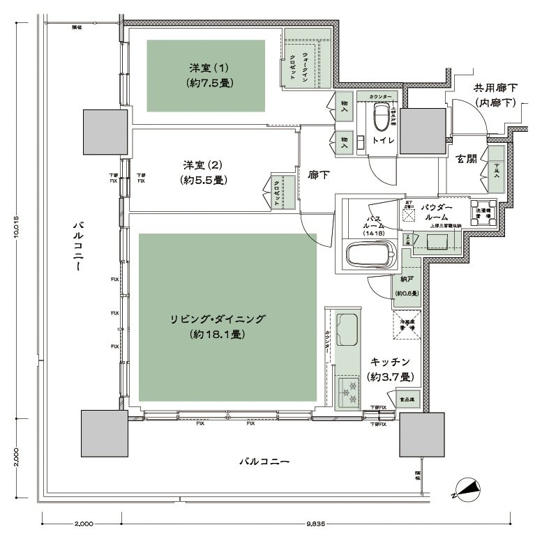
間取り |
2LDK+N+WIC |
---|---|---|---|
専有面積 |
78.44 ㎡ |
バルコニー面積 |
- |
所在地 |
東京都豊島区南池袋2丁目100番(地番) |
||
交通 |
東京メトロ有楽町線「東池袋」駅 徒歩1分 |
||
備考 |
バルコニー面積:39.45㎡(7・9・18〜29・32〜40・42〜50F)、39.36㎡ (41F) |