

| タイプ |
W-70A-標準 type |
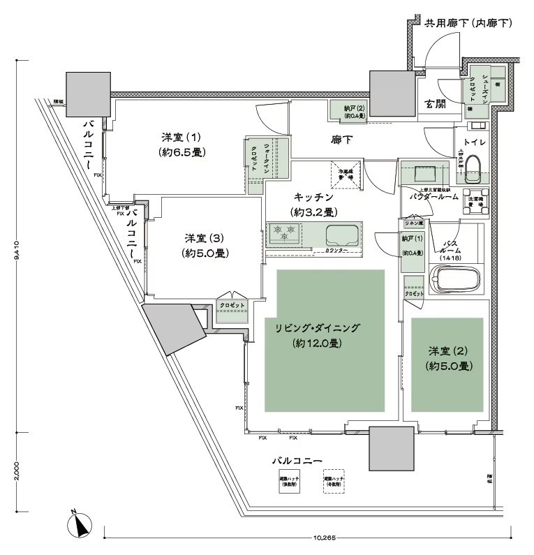
間取り |
3LDK+2N+WIC+SIC |
|---|---|---|---|
| 専有面積 |
72.44 ㎡ |
バルコニー面積 |
- |
| 所在地 |
東京都豊島区南池袋2丁目100番(地番) |
||
| 交通 |
東京メトロ有楽町線「東池袋」駅 徒歩1分 |
||
| 備考 |
バルコニー面積:22.46㎡(8・9・18〜37・39・40・42〜50F)、22.36㎡ (41F) |
||