
タイプ |
C type |
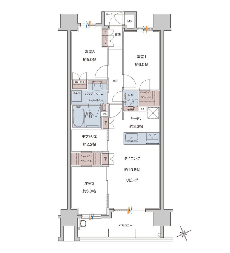
間取り |
3LDK+2WIC+M |
---|---|---|---|
専有面積 |
70.94 ㎡ |
バルコニー面積 |
- |
所在地 |
福岡県福岡市東区千早5丁目2342番1(地番) |
||
交通 |
JR鹿児島本線「千早」駅 徒歩10分(約800m) |
||
備考 |
バルコニー面積:8.99㎡(2F~5F)、8.62㎡(6F~18F) |