
タイプ |
Agタイプ |
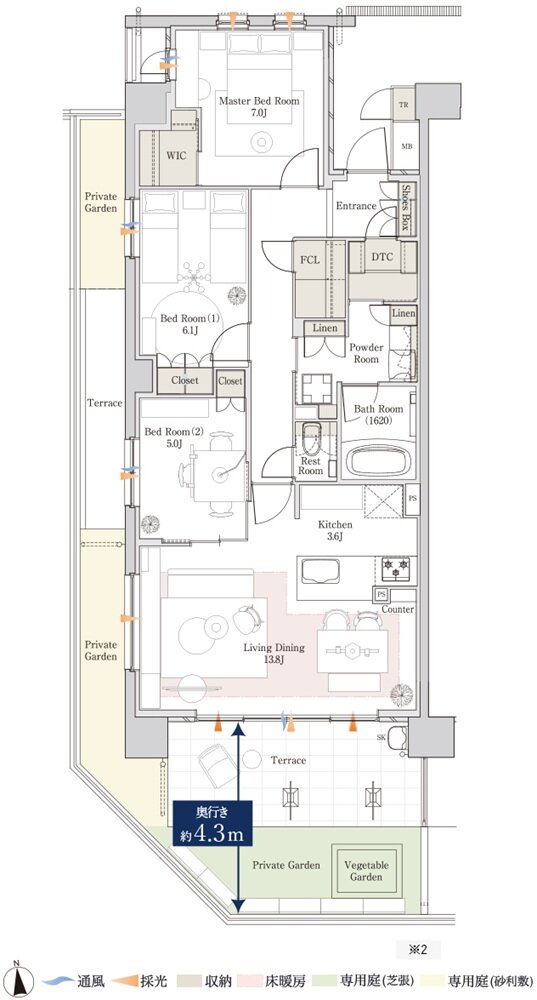
間取り |
3LDK+WIC+FCL+DTC+TR |
---|---|---|---|
専有面積 |
87.40 ㎡ |
バルコニー面積 |
- |
所在地 |
愛知県名古屋市名東区藤森西町1908番 (地番) |
||
交通 |
名古屋市東山線「藤が丘」駅 徒歩12分(1番出入口) |
||
備考 |
テラス面積:13.86㎡ |