

| タイプ |
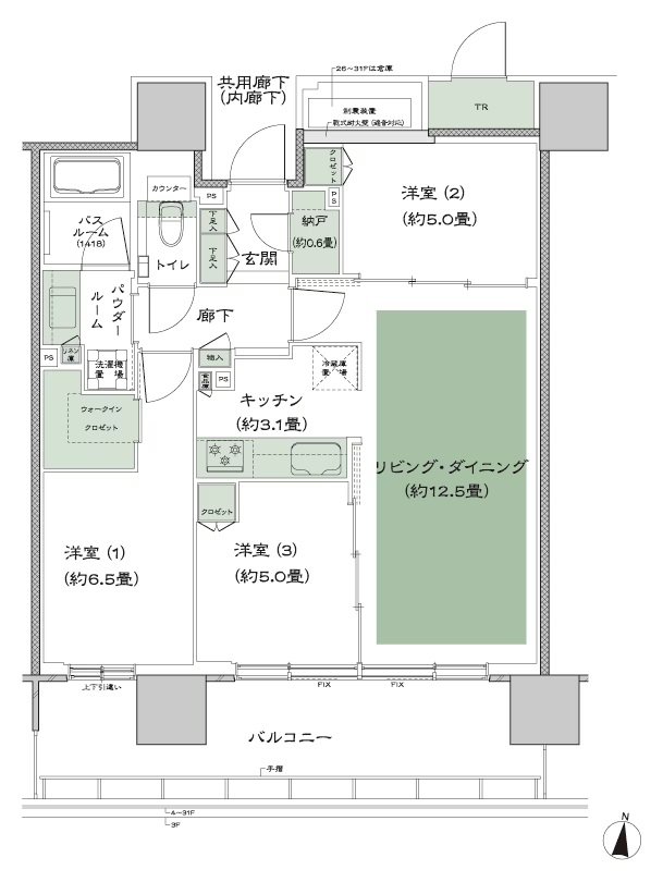
F_標準プラン type |
間取り |
3LDK+N+WIC |
|---|---|---|---|
| 専有面積 |
72.6 ㎡ |
バルコニー面積 |
- |
| 所在地 |
東京都足立区綾瀬3丁目4番4他(地番) |
||
| 交通 |
JR千代田・常磐緩行線「綾瀬」駅 徒歩1分 |
||
| 備考 |
バルコニー面積:17.73㎡ (3F) |
||