

| タイプ |
I_LD拡大 type |
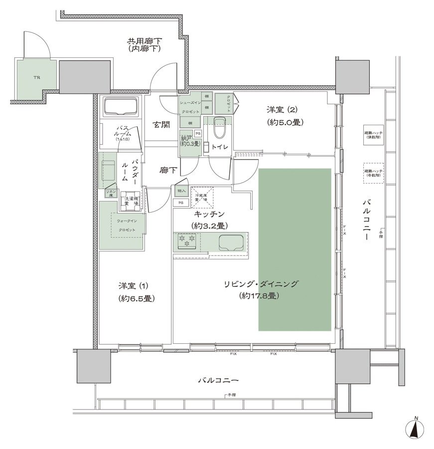
間取り |
2LDK+N+WIC+SIC |
|---|---|---|---|
| 専有面積 |
74.18 ㎡ |
バルコニー面積 |
- |
| 所在地 |
東京都足立区綾瀬3丁目4番4他(地番) |
||
| 交通 |
JR千代田・常磐緩行線「綾瀬」駅 徒歩1分 |
||
| 備考 |
バルコニー面積:34.72㎡(3F)、32.21㎡(4〜31F) |
||