

| タイプ |
BI type【モデルルーム住戸】 |
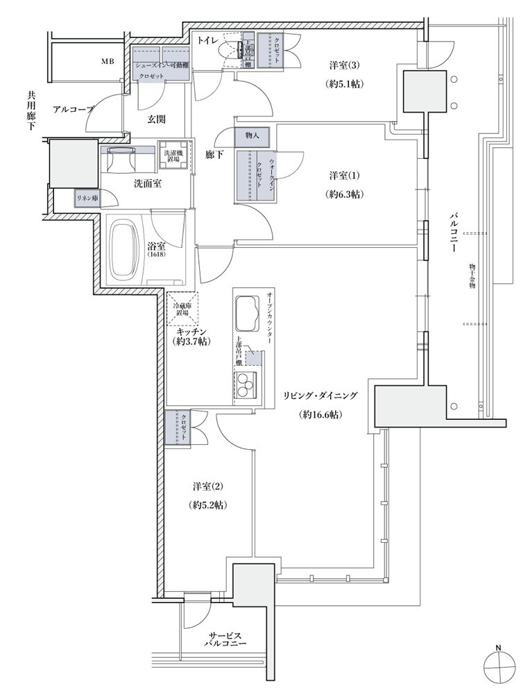
間取り |
3LDK+WIC+SIC |
|---|---|---|---|
| 専有面積 |
81.23 ㎡ |
バルコニー面積 |
13.75 ㎡ |
| 所在地 |
大阪府大阪市西区南堀江3丁目8番1(地番) |
||
| 交通 |
地下鉄長堀鶴見緑地線「西長堀」駅 徒歩4分 |
||
| 備考 |
サービスバルコニー面積:2.84㎡ |
||