

| タイプ |
AD type |
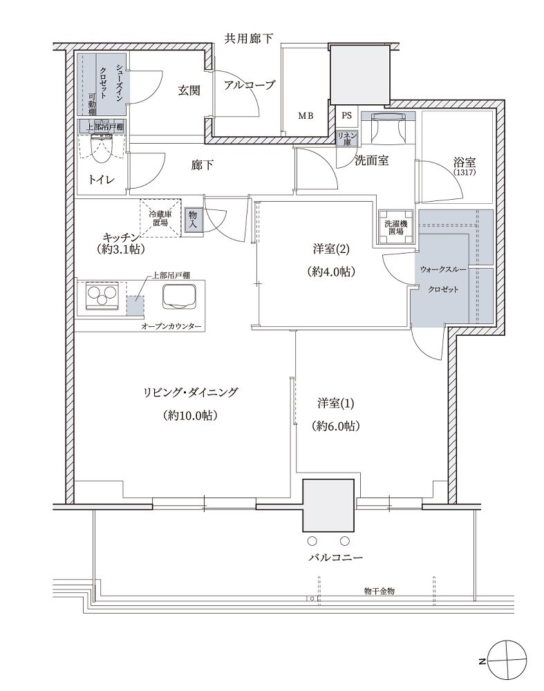
間取り |
2LDK+WTC+SIC |
|---|---|---|---|
| 専有面積 |
57.33 ㎡ |
バルコニー面積 |
- |
| 所在地 |
大阪府大阪市西区南堀江3丁目8番1(地番) |
||
| 交通 |
地下鉄長堀鶴見緑地線「西長堀」駅 徒歩4分 |
||
| 備考 |
バルコニー面積:12.99㎡(5~21階) |
||