
タイプ |
CK type |
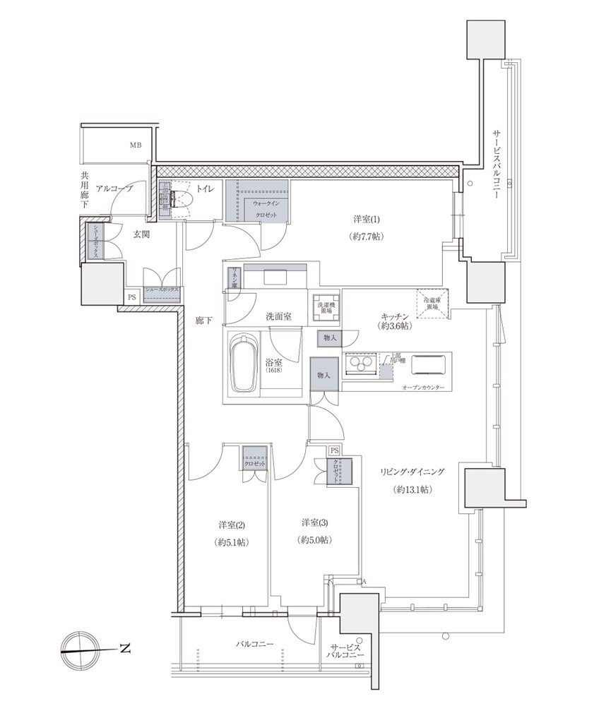
間取り |
3LDK+WIC |
---|---|---|---|
専有面積 |
86.10 ㎡ |
バルコニー面積 |
4.71 ㎡ |
所在地 |
大阪府大阪市西区南堀江3丁目8番1(地番) |
||
交通 |
地下鉄長堀鶴見緑地線「西長堀」駅 徒歩4分 |
||
備考 |
サービスバルコニー面積:7.35㎡ |