

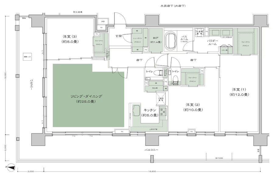
| タイプ |
I-標準 type |
間取り |
3LDK+N+3WIC+SIC |
|---|---|---|---|
| 専有面積 |
140.94 ㎡ |
バルコニー面積 |
55.33 ㎡ |
| 所在地 |
北海道札幌市中央区宮ケ丘2丁目434-1(地番) |
||
| 交通 |
札幌市東西線「円山公園」駅 徒歩8分(3番出入口徒歩9分)※サブエントランスより。1番出入口利用(始発~22:45)、「円山公園」駅3番出入口より徒歩9分(始発~終電) |
||