

| タイプ |
C'_標準プラン type |
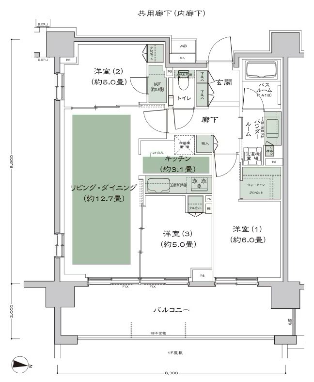
間取り |
3LDK+N+WIC |
|---|---|---|---|
| 専有面積 |
70.47 ㎡ |
バルコニー面積 |
- |
| 所在地 |
北海道札幌市中央区宮ケ丘2丁目434-1(地番) |
||
| 交通 |
札幌市東西線「円山公園」駅 徒歩8分(3番出入口徒歩9分)※サブエントランスより。1番出入口利用(始発~22:45)、「円山公園」駅3番出入口より徒歩9分(始発~終電) |
||
| 備考 |
バルコニー面積:17.15㎡(2F)、17.14㎡(3〜5・7・8F)、16.95㎡(6F) |
||