
タイプ |
A-Or-標準 type |
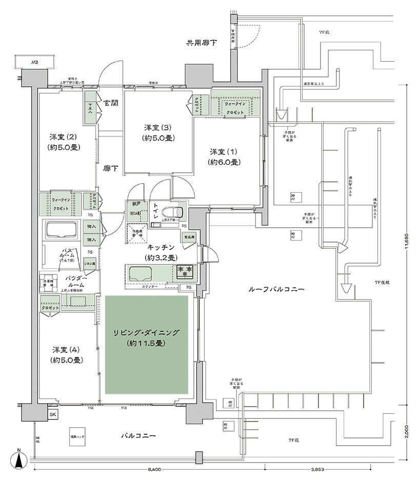
間取り |
4LDK+N+2WIC |
---|---|---|---|
専有面積 |
80.97 ㎡ |
バルコニー面積 |
14.43 ㎡ |
所在地 |
東京都江戸川区平井6丁目2375(地番)(アクアレジデンス) |
||
交通 |
JR総武線「平井」駅 徒歩10分(アクアレジデンス) |
||
備考 |
ルーフバルコニー面積:44.76㎡ |