
タイプ |
A-Jt-標準 type |
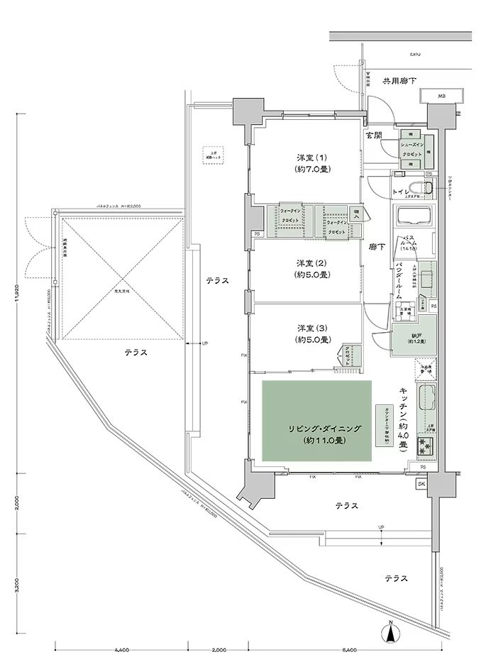
間取り |
3LDK+N+2WIC+SIC |
---|---|---|---|
専有面積 |
75.33 ㎡ |
バルコニー面積 |
- |
所在地 |
東京都江戸川区平井6丁目2375(地番)(アクアレジデンス) |
||
交通 |
JR総武線「平井」駅 徒歩10分(アクアレジデンス) |
||
備考 |
テラス面積:82.43㎡ |