アットホーム 新築マンション

印刷する

このウィンドウを閉じる

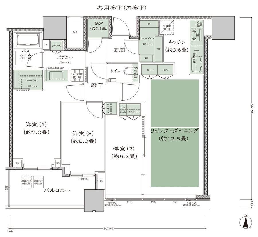
梅田ガーデンレジデンス S-80E type

梅田ガーデンレジデンス 間取り S-80E type
タイプ

S-80E type

間取り

3LDK+N+WIC+SIC

専有面積

79.74 ㎡

バルコニー面積

8.24 ㎡

所在地

大阪府大阪市北区曾根崎2丁目73番2(地番)

交通

JR大阪環状線「大阪」駅 徒歩5分(地下街ルート/4:40~25:00) 徒歩6分(公道ルート)
地下鉄御堂筋線「梅田」駅 徒歩3分
地下鉄谷町線「東梅田」駅 徒歩2分 他

  • 玄関からリビングが見えない間取り
  • 可変式間仕切り
  • ウォークインクローゼット
  • シューズインクローゼット
  • 南向き
  • フラットフロア

印刷する

このウィンドウを閉じる

アットホーム Copyright(c) At Home Co.,Ltd. このサイトに掲載している情報の無断転載を禁止します。著作権はアットホーム(株)またはその情報提供者に帰属します。