

| タイプ |
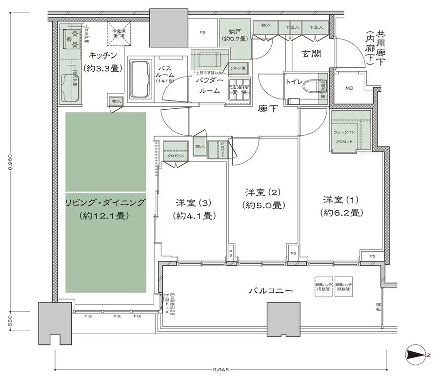
E-75E type |
間取り |
3LDK+N+WIC |
|---|---|---|---|
| 専有面積 |
72.97 ㎡ |
バルコニー面積 |
13.33 ㎡ |
| 所在地 |
大阪府大阪市北区曾根崎2丁目73番2(地番) |
||
| 交通 |
JR大阪環状線「大阪」駅 徒歩5分(地下街ルート/4:40~25:00) 徒歩6分(公道ルート) |
||