
タイプ |
H TYPE【MENU2】 |
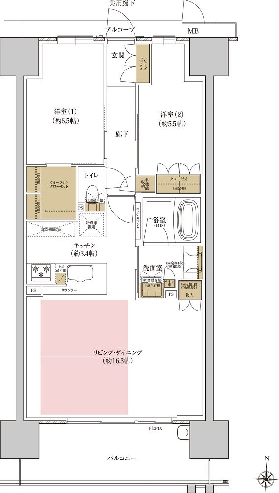
間取り |
2LDK+WIC |
---|---|---|---|
専有面積 |
70.21 ㎡ |
バルコニー面積 |
11.80 ㎡ |
所在地 |
岡山県岡山市北区昭和町145-17(地番) |
||
交通 |
山陽新幹線「岡山」駅 徒歩6分(サブエントランスより) |
||
備考 |
アルコーブ面積:2.97㎡ |