アットホーム 新築マンション

印刷する

このウィンドウを閉じる

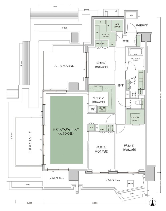
シティテラス文京小石川 A-Rr-標準 type

シティテラス文京小石川 間取り A-Rr-標準 type
タイプ

A-Rr-標準 type

間取り

3LDK+N+WIC+SIC

専有面積

104.51 ㎡

バルコニー面積

15.33 ㎡

所在地

東京都文京区小石川4丁目45-1(地番)
東京都文京区小石川4丁目14-31(住居表示)

交通

東京メトロ丸ノ内線「後楽園」駅 徒歩11分
東京メトロ南北線「後楽園」駅 徒歩11分
東京メトロ丸ノ内線「茗荷谷」駅 徒歩15分 他

備考

ルーフバルコニー面積:28.36㎡
トランクルーム面積:1.43㎡

  • 玄関からリビングが見えない間取り
  • 広いリビング
  • ウォークインクローゼット
  • シューズインクローゼット
  • 広いバルコニー
  • 3面バルコニー
  • ルーフバルコニー
  • スロップシンク
  • 南向き
  • フラットフロア

印刷する

このウィンドウを閉じる

アットホーム Copyright(c) At Home Co.,Ltd. このサイトに掲載している情報の無断転載を禁止します。著作権はアットホーム(株)またはその情報提供者に帰属します。