
タイプ |
F type |
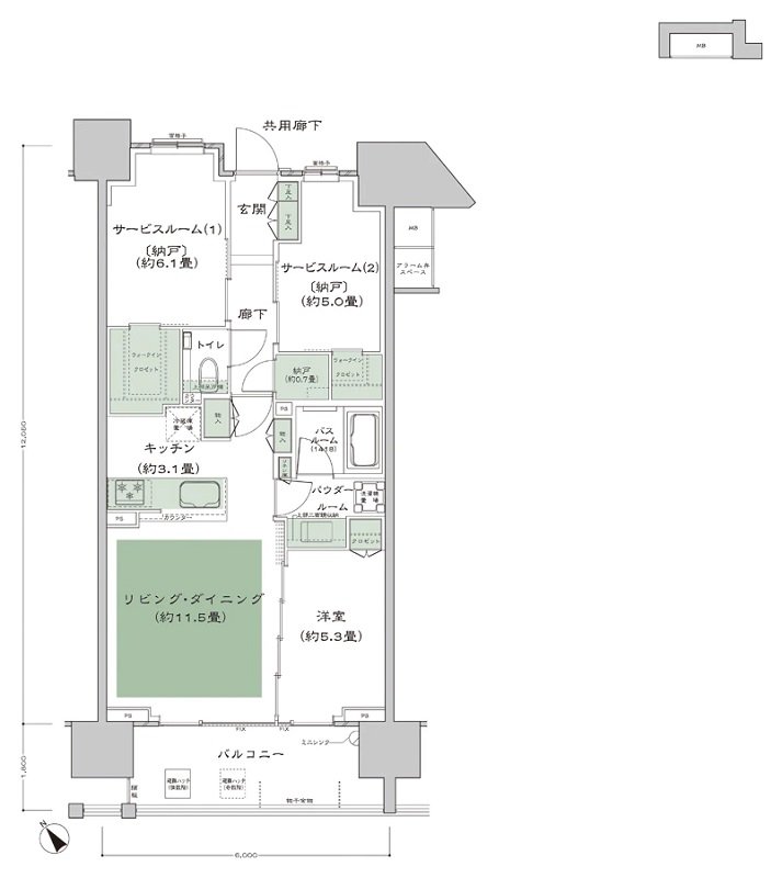
間取り |
1LDK+2S+N+2WIC |
---|---|---|---|
専有面積 |
70.27 ㎡ |
バルコニー面積 |
- |
所在地 |
東京都武蔵野市中町1丁目3068-52 |
||
交通 |
JR中央線「三鷹」駅 徒歩3分 |
||
備考 |
バルコニー面積:9.81㎡(3〜14F)、10.80㎡(2・15・16F) |