アットホーム 新築マンション

印刷する

このウィンドウを閉じる

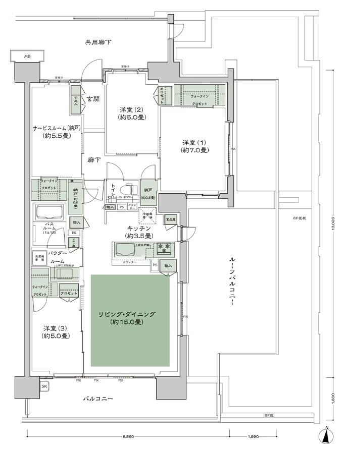
シティハウス小金井公園 H-95E1rs type

シティハウス小金井公園 間取り H-95E1rs type
タイプ

H-95E1rs type

間取り

3LDK+S+2N+3WIC

専有面積

93.19 ㎡

バルコニー面積

14.58 ㎡

所在地

東京都小平市花小金井南町1丁目890番17他(地番)

交通

JR中央線「武蔵小金井」駅 までグランドエントランス[A棟・B棟]より徒歩1分・エントランス[C棟~H棟]より徒歩2分のバス停よりバス15分(平常時13分)
西武新宿線「花小金井」駅 徒歩10分(グランドエントランス[A棟・B棟])/徒歩11分(エントランス[C棟~H棟])

備考

ルーフバルコニー面積:38.12㎡

  • 可変式間仕切り
  • 広いリビング
  • ウォークインクローゼット
  • 2面バルコニー
  • ルーフバルコニー
  • 南向き
  • フラットフロア

印刷する

このウィンドウを閉じる

アットホーム Copyright(c) At Home Co.,Ltd. このサイトに掲載している情報の無断転載を禁止します。著作権はアットホーム(株)またはその情報提供者に帰属します。